alquiler de local comercial en avenida roosevelt y zelmar michelini - ngp31264l

Punta del Este -
NGP31264L 11 Fotos

alquiler de local comercial en avenida roosevelt y zelmar michelini - ngp31264l

  • Código : NGP31264L
  • Codigo Interno: 31264
  • zona: Maldonado
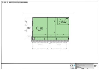
  • Superficie: 149

Excelente oportunidad para instalar tu negocio en una de las zonas más estratégicas y de mayor circulación de Punta del Este.

El local cuenta con una superficie total de 149,45 m2, distribuida en dos plantas que permiten una operativa funcional y versátil:

Planta Baja (81,01 m2): amplio Espacio ideal para atención al público, con gran potencial de exhibición y circulación. Dispone además de un sector previsto para la instalación de elevador, facilitando el traslado de mercadería.

Subsuelo (68,44 m2): Espacio perfectamente adaptable como depósito yo área de trabajo interna, brindando comodidad operativa y orden.

El inmueble incluye baño para uso del personal, completando una propuesta práctica y eficiente para distintos rubros comerciales.

Ubicado sobre Avenida Roosevelt, arteria principal de la ciudad, con excelente visibilidad y fácil acceso, ideal para potenciar tu marca.

Valor de alquiler mensual: U$S 9.500

Una opción ideal para empresas que buscan presencia, comodidad y funcionalidad en una ubicación clave

Características

  • Superficie m2: 149
  • Frente: 0
  • Fondo: 0
  • Baños: 1
  • Ideal Para: Clínicas, óptica, rotisería, restaurant

Precio Alquiler Anual : U$S 9500


Actualizado 20-03-2026

Fotos de la Propiedad (11)

alquiler de local comercial en avenida roosevelt y zelmar michelini - ngp31264l
alquiler de local comercial en avenida roosevelt y zelmar michelini - ngp31264l
alquiler de local comercial en avenida roosevelt y zelmar michelini - ngp31264l
alquiler de local comercial en avenida roosevelt y zelmar michelini - ngp31264l
alquiler de local comercial en avenida roosevelt y zelmar michelini - ngp31264l
alquiler de local comercial en avenida roosevelt y zelmar michelini - ngp31264l
alquiler de local comercial en avenida roosevelt y zelmar michelini - ngp31264l
alquiler de local comercial en avenida roosevelt y zelmar michelini - ngp31264l
alquiler de local comercial en avenida roosevelt y zelmar michelini - ngp31264l